Description
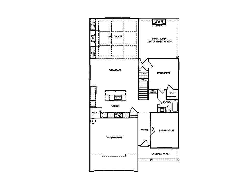
The Creekwood Plan built by Walker Anderson Homes is a Beautiful Home on a Quiet Culdesac Street in the Charming Hemingway Community in Downtown Flowery Branch and within walking distance to the Lake Lanier Marinas, Restaurants, and Recreational Offerings. The Home features a Luxurious Brick with Board & Batten Exterior with Covered Rear Porch and Expansive 9-Foot Ceilings on both the Main and Upper Levels. When you enter through the front door from the Covered Front Porch, you are greeted by a flex room which can be setup as a formal dining room or an office. The Kitchen is open to the Family Room & Breakfast Room, has Painted Cabinets with Soft-Close Cabinet Doors & Drawers and includes a 36" Gas Cooktop with Cabinet Vent Hood, Wall Oven, Wall Microwave, all complimented by a Large Island. There is also a guest suite on the main level with full bathroom. The Primary Bedroom Suite Upstairs is Spacious and complete with a Tray Ceiling. It features a very large Primary Closet, Double Vanity, and a Large Shower with Separate Soaking Tub. A Super Shower Option is also available. There are Three Additional Bedrooms Upstairs, each with a Walk-In Closet, and two more Full Baths. Home is under construction with a projected completion Summer 2026. Ask about your Incentives with use of preferred lender. *Secondary Photos are Stock Photos
-
5BEDS
-
0.38ACRES
-
4BATHS
-
01/2 BATHS
-
3,017SQFT
-
$182$/SQFT
School Information
Description
The Creekwood Plan built by Walker Anderson Homes is a Beautiful Home on a Quiet Culdesac Street in the Charming Hemingway Community in Downtown Flowery Branch and within walking distance to the Lake Lanier Marinas, Restaurants, and Recreational Offerings. The Home features a Luxurious Brick with Board & Batten Exterior with Covered Rear Porch and Expansive 9-Foot Ceilings on both the Main and Upper Levels. When you enter through the front door from the Covered Front Porch, you are greeted by a flex room which can be setup as a formal dining room or an office. The Kitchen is open to the Family Room & Breakfast Room, has Painted Cabinets with Soft-Close Cabinet Doors & Drawers and includes a 36" Gas Cooktop with Cabinet Vent Hood, Wall Oven, Wall Microwave, all complimented by a Large Island. There is also a guest suite on the main level with full bathroom. The Primary Bedroom Suite Upstairs is Spacious and complete with a Tray Ceiling. It features a very large Primary Closet, Double Vanity, and a Large Shower with Separate Soaking Tub. A Super Shower Option is also available. There are Three Additional Bedrooms Upstairs, each with a Walk-In Closet, and two more Full Baths. Home is under construction with a projected completion Summer 2026. Ask about your Incentives with use of preferred lender. *Secondary Photos are Stock Photos
Related Properties
Listings identified with the FMLS IDX logo come from FMLS, are held by brokerage firms other than the owner of this website and the listing brokerage is identified in any listing details. Information is deemed reliable but is not guaranteed.
If you believe any FMLS listing contains material that infringes your copyrighted work, please click here to review our DMCA policy and learn how to submit a takedown request.
© 2026 First Multiple Listing Service, Inc. Data last updated 2026-02-14T14:04:26.873. For issues regarding this website, please contact BoomTown.
