Description
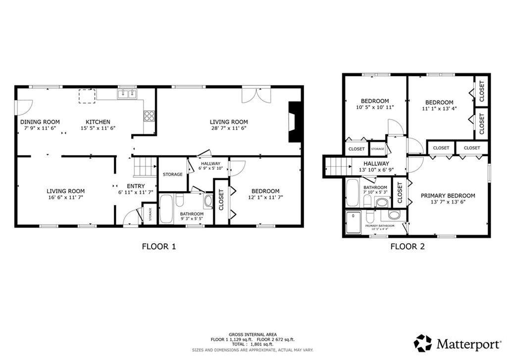
Tucked away on a quiet East Cobb street with no HOA, this beautifully updated home offers privacy, comfort, and a genuine connection to nature. Set behind a wide, level front yard and surrounded by mature trees, it feels like a retreat while still being close to everyday conveniences. Located in the highly regarded Sope Creek, Dickerson, and Walton school district, this home delivers both lifestyle and long-term value. Inside, natural light fills the home from every angle, creating an inviting, airy feel throughout. The main level features an updated kitchen with stainless steel appliances, modern finishes, and durable LVP flooring designed to support daily living while still feeling polished. The layout flows easily, offering the right balance of openness and definition for gathering, relaxing, or entertaining. The lower level welcomes you with a cozy family room centered around a stone fireplace with custom built-ins, making it ideal for quiet evenings or casual get-togethers. A bedroom and full bath on this level provide flexibility for guests, a home office, or a private retreat. Upstairs, three additional bedrooms and two full baths offer comfortable, adaptable spaces to fit a variety of needs. The primary suite feels calm and well-proportioned, while the remaining bedrooms are equally versatile. Out back, the setting truly stands out. The wooded lot creates a peaceful backdrop filled with mature trees, birdsong, and frequent wildlife sightings. Whether you envision outdoor dining, a firepit, or a garden space, the yard offers room to create something special. Recent updates include a newer HVAC system and water heater, and the location places you minutes from shopping, dining, and the Chattahoochee River trails. Optional nearby swim and tennis clubs provide the opportunity for community amenities without the restrictions. A rare opportunity to enjoy flexibility, privacy, and a prime East Cobb location.
-
4BEDS
-
0.46ACRES
-
3BATHS
-
01/2 BATHS
-
1,908SQFT
-
$307$/SQFT
School Information
Description
Tucked away on a quiet East Cobb street with no HOA, this beautifully updated home offers privacy, comfort, and a genuine connection to nature. Set behind a wide, level front yard and surrounded by mature trees, it feels like a retreat while still being close to everyday conveniences. Located in the highly regarded Sope Creek, Dickerson, and Walton school district, this home delivers both lifestyle and long-term value. Inside, natural light fills the home from every angle, creating an inviting, airy feel throughout. The main level features an updated kitchen with stainless steel appliances, modern finishes, and durable LVP flooring designed to support daily living while still feeling polished. The layout flows easily, offering the right balance of openness and definition for gathering, relaxing, or entertaining. The lower level welcomes you with a cozy family room centered around a stone fireplace with custom built-ins, making it ideal for quiet evenings or casual get-togethers. A bedroom and full bath on this level provide flexibility for guests, a home office, or a private retreat. Upstairs, three additional bedrooms and two full baths offer comfortable, adaptable spaces to fit a variety of needs. The primary suite feels calm and well-proportioned, while the remaining bedrooms are equally versatile. Out back, the setting truly stands out. The wooded lot creates a peaceful backdrop filled with mature trees, birdsong, and frequent wildlife sightings. Whether you envision outdoor dining, a firepit, or a garden space, the yard offers room to create something special. Recent updates include a newer HVAC system and water heater, and the location places you minutes from shopping, dining, and the Chattahoochee River trails. Optional nearby swim and tennis clubs provide the opportunity for community amenities without the restrictions. A rare opportunity to enjoy flexibility, privacy, and a prime East Cobb location.
Listings identified with the FMLS IDX logo come from FMLS, are held by brokerage firms other than the owner of this website and the listing brokerage is identified in any listing details. Information is deemed reliable but is not guaranteed.
If you believe any FMLS listing contains material that infringes your copyrighted work, please click here to review our DMCA policy and learn how to submit a takedown request.
© 2026 First Multiple Listing Service, Inc. Data last updated 2026-03-10T23:03:59.597. For issues regarding this website, please contact BoomTown.
